Bexbach
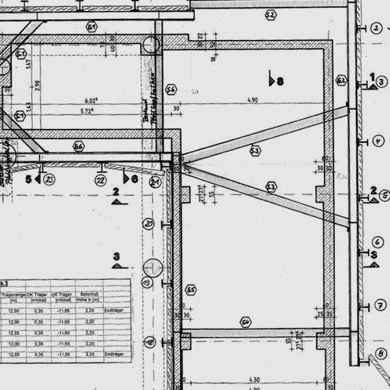
Die Bauaufgabe bestand bei diesem Projekt in der Herstellung eines einlagig ausgesteiften Verbaus und der Bodenverbesserung der Gründungsebene durch Rammarbeiten bzw. durch Pfahlbohrungen bis in den Fels.
Durch die Geometrie der Baugrube waren aufwändige Montage und Schweißarbeiten nötig. 
Eine besondere Sorgfalt war wegen der Vielzahl an Leitungen erforderlich, welche die Baugrube querten. Deren Lage musste sowohl bei der Ausführung der Träger- bzw. Pfahlbohrungen, als auch beim Einbau der Holzausfachung berücksichtigt werden.






