Heidelberg, MPI
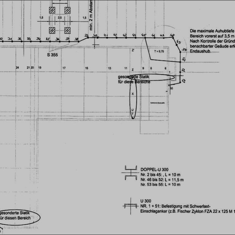
Eine 8,5 m tiefe Baugrube hatte die BHG Brechtel GmbH in Heidelberg herzustellen. Der Verbau war mit 4-Litzen-Ankern temporär rückverhängt worden. In einem tieferen Bereich der Baugrube ( T = 9,75 m) waren zwei Lagen Anker erforderlich.
Die Ausfachung wurde größtenteils aus Holz hergestellt. Nur in wenigen tiefen Bereichen der Baugrube kam Spritzbeton zum Einsatz. Nach Herstellung der Untergeschosse wurden die Anker gelöst, die Ausfachung lagenweise ausgebaut und, nach vollständiger Verfüllung des Arbeitsraumes, die Träger wieder gezogen.






